Description
Three-Car Garage with Spacious Attic & Balcony
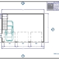
Maximize your space and elevate your property with this beautifully designed 31′ x 21′ three-car garage blueprint. Perfect for homeowners, DIY builders, and contractors, this garage plan offers more than just vehicle storage—it’s a versatile space with a large attic, dormers, and a stylish balcony to enhance both functionality and curb appeal.
Key Features:
✅ Three-Car Garage – Ample space for vehicles, motorcycles, ATVs, or a home workshop.
✅ Expansive Attic Storage – A large upper-level storage area, ideal for seasonal items, hobby space, or even a future conversion.
✅ Dual Dormer Design – Two charming dormers on one side add architectural character and natural light to the attic.
✅ Shed Dormer with Three Windows – Brings in even more daylight, making the attic a bright and airy space.
✅ Private Balcony with Sliding Patio Door – A stunning feature that adds an upscale touch, perfect for relaxation or future living space potential.
Designed with both practicality and aesthetics in mind, this blueprint provides detailed construction plans to ensure a smooth building process. Whether you need extra storage, a dream workshop, or a multi-purpose space, this garage design delivers.
Download your blueprint today and start building your perfect garage!
Comprehensive Construction Plans Included:
This blueprint goes above and beyond with full construction details, ensuring that every aspect of the build is covered:
• Foundation Plans & Details: Clearly marked foundation design with specific details on footings, slab, and necessary reinforcements.
• Floor Plans: Detailed layout of the garage interior, showcasing optimal space for equipment, tools, and vehicles.
• Wall Details: In-depth drawings showing the framing for every wall, with exact locations for doors and windows. Every framing member, from studs to headers, is carefully laid out to ensure structural integrity.
• Window & Door Schedule: Clear instructions on window and door placement with dimensions for each opening.
• Framing Material List: An extensive list of all materials required to build the structure, ensuring you know exactly what to purchase for each phase of construction.
Whether you’re a DIY enthusiast or a seasoned builder, this stock blueprint offers the clarity and accuracy you need to make your project a success. With everything you need at your fingertips, this garage design is ready to turn your vision into reality. Build it right, build it strong.
Plans include foundation plan, floor plan, roof plan, elevation plans, wall sections and Foundation details and only Framing Schedule and generic door and window list.
All plans are designed by me, using state of the art software package. I earned Mechanical Engineering degree in 1988 have been working as an engineer for over 32 years, also I am a licensed builder in the state of Michigan since 1989.












Our Construction company is Servicing Southeast Michigan, Detroit and the Tri-County area Wyane, Oakland and Macomb;

