Build Your Dream Garage with High-Quality Garage Blueprints and Garage Drawings

Are you ready to build your dream garage? Whether you’re a homeowner, contractor, or DIY enthusiast, having the right set of garage blueprints is the key to turning your vision into reality. At Construction Concept Design Build LLC, we provide professional garage drawings and garage plans that are designed to save you time, money, and stress during the building process.

Our detached garage plans are created by experienced engineers and licensed builders who understand both functionality and structural integrity. Each set of garage plans includes everything you need to get started — without the unnecessary extras that complicate the process.


Complete, Easy-to-Follow Garage Blueprints

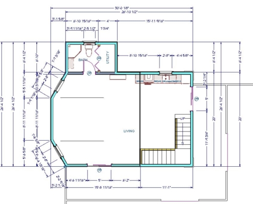
When you purchase one of our garage blueprints, you get a full package of essential drawings and schedules carefully developed for simplicity and accuracy. Each set of garage drawings includes:

  • Foundation Plan – Detailing the precise footings, slab, or foundation walls required to support your structure.

  • Floor Plan – A clear layout showing dimensions, doors, and general configuration.

  • Roof Plan – An overview of the roof framing, pitch, and layout for proper construction.

  • Elevation Plans – All exterior views for visualizing the finished garage.

  • Wall Sections – Cross-sections for understanding construction details.

  • Foundation Details – Specific reinforcement and concrete work specifications.

  • Framing Schedule – Organized framing notes and material sizing for efficient building.

Our garage plans are designed with practicality in mind — no electrical, no plumbing, no HVAC, and no site work are included, meaning you pay only for what you need to build your dream garage.


Why Choose Our Detached Garage Plans

When it comes to detached garage plans, precision matters. Our garage blueprints are created by a licensed builder and engineer with decades of experience in Michigan’s construction industry. They are code-compliant, easy to read, and ready to submit to local building departments (with minor site-specific modifications if required).

We pride ourselves on offering:

  • Competitive Pricing – Our garage drawings and garage plans are priced to provide exceptional value.

  • Digital and Print Options – Receive your garage blueprints instantly in PDF format or have them shipped in printed sets.

  • Clear, Buildable Designs – We eliminate unnecessary complexity so you can build your dream garage faster.

  • Versatile Layouts – Whether you need storage, a workshop, a man cave, or a guest suite above, our detached garage plans cover a variety of needs.


Build Your Dream Garage with Confidence

When you purchase our garage drawings, you’re not just buying paper — you’re investing in peace of mind. Every line, dimension, and note is prepared for clarity and accuracy. We understand that homeowners want to build your dream garage efficiently, and contractors appreciate plans that reduce questions and costly errors.

Our garage plans help you avoid the pitfalls of poorly-drafted or generic templates found elsewhere online. Instead, you receive professional-grade garage blueprints tailored for practical, real-world construction.


Perfect for DIY Builders and Contractors

Whether you’re a do-it-yourself builder or you’re hiring a contractor, our detached garage plans provide a clear roadmap for success. Many of our clients use the plans to:

  • Build your dream garage to store vehicles, tools, or recreational equipment.

  • Create an upstairs apartment, office, or hobby studio.

  • Add property value with a well-designed detached structure.

  • Reduce design costs by using pre-engineered garage drawings.


Available Immediately — Start Building Now

We know that timing is everything. That’s why our garage blueprints are available in both digital PDF format and printed copies. You can download, review, and share your garage drawings with contractors or building departments immediately, saving days or even weeks in the planning stage.

Whether you need a simple 2-car garage or a large structure with a loft, our detached garage plans are designed to fit your needs. And because our garage plans are competitively priced, you get premium quality without the premium cost.


Why Search Anywhere Else for Garage Plans?

When you need reliable, detailed, and cost-effective garage blueprints, the choice is clear. We offer more than just garage drawings — we provide a complete service that helps you build your dream garage quickly and efficiently. Our customers appreciate the care and precision that goes into every design, and they trust our experience to deliver plans they can rely on.

With decades of engineering and building expertise behind every set of detached garage plans, you’re not just purchasing a design — you’re buying confidence, accuracy, and convenience.


Get Started Today — Build Your Dream Garage

Don’t wait any longer to build your dream garage. Explore our collection of garage blueprints, choose the garage plans that fit your property and vision, and download or order your plans today.

To view all available garage drawings and detached garage plans — and take the first step toward your perfect new structure.